Zur Navigation wechseln Zum Inhalt wechseln Zum Footer wechseln

Exklusives Reihenendhausgrundstück mit genehmigtem Bau in Düsseldorf-Angermund

ImmoNr
20261092
Objektart
Grundstück
Objekttyp
Wohnen
Vermarktungsart
Kauf
Ort
Düsseldorf / Angermund
Land
Deutschland
Wohnfläche
ca. 135 m²
Grundstücksgröße
ca. 183 m²
Kaufpreis
226.000,00 €

Zur Immobilie

In Düsseldorf-Angermund entsteht ein modernes Neubauensemble aus insgesamt acht Einfamilienhäusern und zwei kleinen Mehrfamilienhäusern. Die Architektur ist zeitgemäß, die Planung familienfreundlich und auf langfristigen Wohnkomfort ausgerichtet.

Zum Verkauf steht das Grundstück für das Reihenendhaus rechts – Haus 49 E. Der Kaufpreis beträgt 226.000 Euro. Die Baugenehmigung für das geplante Haus liegt bereits vor, sodass Sie unmittelbar mit der Umsetzung Ihres Eigenheims starten können. Die Errichtung des Hauses erfolgt über eine separat zu beauftragende Bauleistung, bei der wir Sie gerne beraten.

Das Grundstück bietet ein hohes Maß an Gestaltungsfreiheit. Sowohl Grundriss als auch Ausstattung können individuell angepasst werden, innerhalb der bestehenden baurechtlichen Vorgaben. Der beispielhaft angegebene Gesamtpreis von 802.577 Euro setzt sich aus Grundstück, Erschließung und Baukosten in einer Standardausstattungsvariante zusammen. Änderungen und Individualisierungen sind ausdrücklich vorgesehen.

Die Maklerprovision fällt ausschließlich auf den Grundstückspreis.

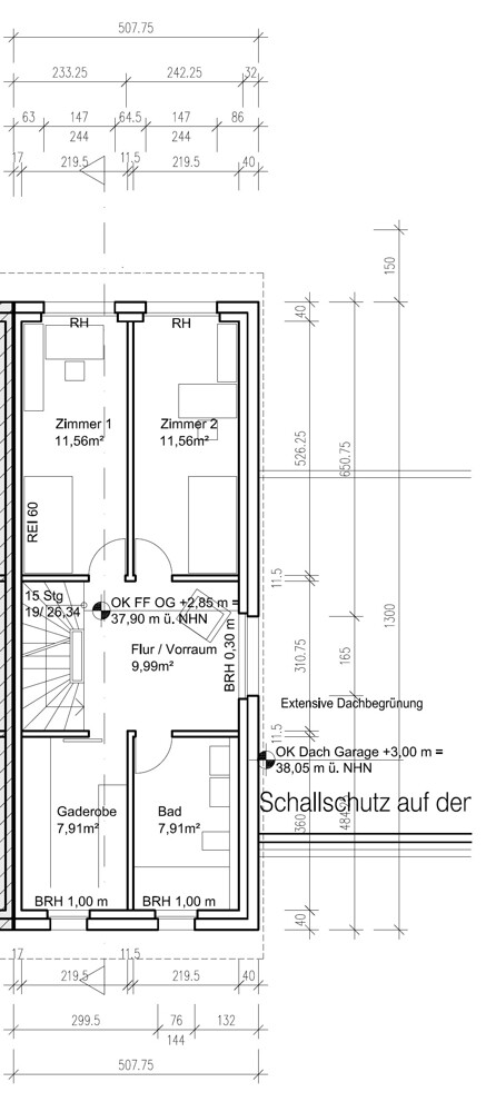
Für das geplante Haus sind folgende Merkmale vorgesehen:

– 5 Zimmer, 4 Schlafzimmer

– Erstbezug

– Großzügige Terrasse mit eigenem Garten

– Moderne Badezimmer mit ebenerdiger Dusche oder Badewanne, hochwertige Armaturen und Feinsteinzeugböden

– Dreifachverglaste Fenster für optimalen Schallschutz

– Umfangreiche Elektroinstallation, optional Smarthome-Technologie

– Fußbodenheizung

– Eigene Wärmeversorgung durch Luft-Wärme-Pumpe mit Warmwasseraufbereitung und PV-Anlage

– Parkettböden in Wohnräumen nach Wunsch

Individuelle Anpassungen auf Wunsch möglich

Alle Bilder, Grundrisse und Darstellungen sind vorläufig und dienen der Veranschaulichung.

Nutzungsart
Wohnen

Das Grundstück befindet sich in Düsseldorf-Angermund, einem der gefragtesten Stadtteile im Norden der Landeshauptstadt. Die Umgebung verbindet ruhiges, grünes Wohnen mit einer familienfreundlichen Infrastruktur und guter Anbindung an die Innenstadt sowie umliegende Städte wie Ratingen und Duisburg.

Öffentliche Verkehrsmittel sind sehr gut erreichbar. Der S-Bahnhof Angermund sorgt für schnelle Verbindungen ins Zentrum und ins Ruhrgebiet, ergänzt durch Buslinien für kurze Wege im Stadtteil. Mit dem Auto sind die wichtigsten Verkehrsachsen und der Flughafen Düsseldorf schnell zu erreichen.

Nahversorgung und Einkaufsmöglichkeiten für den täglichen Bedarf, darunter Supermärkte, Bäckereien und Fachgeschäfte, befinden sich in unmittelbarer Nähe. Familien profitieren von Kindertagesstätten, Grundschulen und weiterführenden Schulen in kurzer Entfernung.

Grünflächen, Spazier- und Radwege sowie die Nähe zum Rhein und zu Naturflächen erhöhen die Lebensqualität und machen das Grundstück besonders attraktiv für Familien, Paare und alle, die ruhiges Wohnen mit urbaner Nähe kombinieren möchten.

Provisionshinweis
a) Provision:
Der Käufer verpflichtet sich, an die WohnPLUS AG eine Provision in Höhe von 3,57 % des notariell beurkundeten Kaufpreises (inklusive gesetzlicher Mehrwertsteuer) zu zahlen.
Die Provision umfasst sämtliche vom Käufer übernommenen Leistungen, das übernommene Inventar sowie Zubehör und gegebenenfalls dem Verkäufer vorbehaltene Nutzungen. Die Provision wird mit Abschluss des notariellen Kaufvertrages fällig und ist an die WohnPLUS AG zu zahlen.

b) Gleichwertiges Geschäft:
Die vorstehend genannte Provision ist ebenfalls verdient und fällig, wenn ein wirtschaftlich gleichwertiges oder gleichartiges Geschäft zustande kommt, das im Zusammenhang mit der angebotenen Immobilie steht.

c) Doppeltätigkeit:
Die WohnPLUS AG ist berechtigt, auch für die andere Vertragspartei (Verkäufer) entgeltlich tätig zu werden (Nachweis- und/oder Vermittlungstätigkeit), sofern keine Interessenkollision vorliegt.

Hinweise
Alle Angaben in diesem Exposé wurden sorgfältig zusammengestellt und beruhen auf Informationen, die uns vom Verkäufer, dem Bauträger oder den zuständigen Behörden übermittelt wurden. Eine Haftung für die Richtigkeit, Vollständigkeit oder Aktualität dieser Angaben wird nicht übernommen. Maßgeblich sind ausschließlich die im notariellen Kaufvertrag geschlossenen Vereinbarungen.

Die Grunderwerbsteuer, Notarkosten und Gerichtskosten trägt der Käufer. Es gelten ergänzend unsere Allgemeinen Geschäftsbedingungen (AGB). Irrtum, Änderungen und Zwischenverkauf bleiben vorbehalten.

Sie suchen noch die passende Immobilie?
Nicht alle unserer Immobilienangebote sind öffentlich einsehbar. Viele Objekte werden diskret vermarktet und exklusiv vorgemerkten Kunden angeboten.
Teilen Sie uns Ihre Suchkriterien mit – wir informieren Sie gerne über passende Angebote!

3,57% inkl. MwSt. auf den beurkundeten Kaufpreis. Fällig und verdient bei Beurkundung.

Ihr Ansprechpartner

Marcus Christian Dey

Herr Marcus Christian Dey

WohnPLUS AG

Tel.:
+49 211 – 650 275-03
E-Mail:
dey@wohnplus-ag.de

Tannenstraße 27
40476 Düsseldorf

Weitere Immobilien

Düsseldorf / Angermund

Attraktives Grundstück mit Altbestand in Düsseldorf Angermund

ImmoNr
2023570
Objektart
Grundstück
Objekttyp
Wohnen
Vermarktungsart
Kauf
Grundstücksgröße
ca. 583 m²

Düsseldorf / Angermund

Schönes Grundstück mit Baugenehmigung für ein 5 Zimmer- Einfamilienhaus in Düsseldorf Angermund!

ImmoNr
20262046
Objektart
Grundstück
Objekttyp
Wohnen
Vermarktungsart
Kauf
Grundstücksgröße
ca. 112 m²
Wohnfläche
ca. 134 m²

Düsseldorf / Angermund

TOP Grundstück mit Baugenehmigung für ein 5Zimmer-Einfamilienhaus in Düsseldorf Angermund!

ImmoNr
20262048
Objektart
Grundstück
Objekttyp
Wohnen
Vermarktungsart
Kauf
Grundstücksgröße
ca. 197 m²
Wohnfläche
ca. 137 m²

Düsseldorf / Angermund

Familien-Grundstück mit Baugenehmigung für ein 5-Zimmer Einfamilienhaus in Düsseldorf Angermund!

ImmoNr
20262049
Objektart
Grundstück
Objekttyp
Wohnen
Vermarktungsart
Kauf
Grundstücksgröße
ca. 184 m²
Wohnfläche
ca. 136 m²

Düsseldorf / Angermund

TOP Grundstück mit Baugenehmigung für ein Einfamilienhaus in Düsseldorf Angermund!

ImmoNr
20261050
Objektart
Grundstück
Objekttyp
Wohnen
Vermarktungsart
Kauf
Grundstücksgröße
ca. 249 m²
Wohnfläche
ca. 136 m²

    Ihre Anfrage zu der Immobilie „Exklusives Reihenendhausgrundstück mit genehmigtem Bau in Düsseldorf-Angermund“ (20261092)

    * Pflichtfelder